中古マンションのことなら東京都仲介手数料無料センター > (マンション(売買))路線・駅から探す > 東京メトロ東西線 > 西葛西駅 > プライマリー西葛西クオーレ
~ 内覧予約、フリーコールにて受付中です。弊社独自のサービスがあります。下記備考欄をご覧ください。~











(※元利均等方式 金利5.00%まで ※返済年数5~50年まで入力できます)
(※ボーナスは年2回で計算しています。1000万円まで入力できます)
(※物件購入時、その他諸費用が発生する場合がございます)
| 所在地 | 東京都江戸川区西葛西2丁目17-9 | ||
|---|---|---|---|
| 交通 | |||
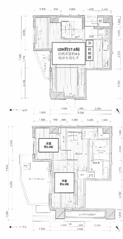
| 間取り/詳細 |
2LDK LDK 17.6帖/洋室 6.9帖/洋室 5.0帖 |
||
| 専有面積/バルコニー面積 | 76.29㎡/2.54㎡ | ルーフバルコニー面積/テラス面積/専用庭面積 | 13.44㎡/-/- |
| 価格 | 5,480万円 | ||
| 管理費 | 15,060円 | ||
| 修繕積立金 | 10,070円 | 修繕積立基金 | - |
| 権利金 | - | 駐車場/月額料金 | 空無/- |
| 土地の敷金/保証金 | -/- | 借地料/借地期間 | -/- |
| 土地権利 | 所有権 | 国土法届出要否 | 不要 |
| 用途地域 | - | 地勢 | - |
| 種別/構造 | 中古マンション/鉄筋コンクリート | 向き | 北東 |
| 築年月(築年数) | 2004年 3月 (築21年) | ||
| 所在階/階建 | 6-7階/9階建 | 棟総戸数/販売戸数 | 35戸/1戸 |
| 管理組合有無 | - | 管理形態 | 管理会社に全部委託 |
| 管理員の勤務形態 | 日勤 | 管理会社 | ㈱大京アステージ |
| 取引態様 | 仲介 | 現況 | 居住中 |
| 引渡し | 相談 | 建築確認番号 | - |
| 物件番号 | 99220189 | 取引条件の有効期限 | 2026年02月03日 |
| リフォーム |
2022年12月 キッチン 浴室 トイレ 給湯器交換等 |
||
| 設備条件 |
|
||
| 備考 |
経験豊富のスタッフが対応いたします スタッフ全員が大手不動産会社出身です。納得いく条件で ご購入いただけるように努めていきます! 問い合わせもスピーディーに対応いたします 問い合わせ当日でも、出来る限り希望の物件の内覧が出来るよう スピーディーに対応させて頂きます。 ご相談に関して料金は頂きません。 お客様の住宅購入を後押ししていきたい為一都三県ご案内可能。 東京・神奈川・埼玉で店舗開設しております。 お気軽にお問い合わせ下さい。 |
||
| 取扱会社 |
|
||
| QRコード |
このQRコードを読み取ることで、スマホでも物件情報を確認できます。 |
||
※地図上に表示される物件の位置は付近住所に所在することを表すものであり、実際の物件所在地とは異なる場合がございます。